副中心首个“好房子”项目示范区域开放,室内实际使用率约为100%
最近,好房子的官方文件《技术要点》发布。满足市场多样化的居住需求,主要通过阳台、底层架空、共享空间等创新要点。北京城建·国誉颂作为政策先锋,以仅1.8容积率的地块,打造9-11层、南北规划的纯洋房住宅区。以大进深阳台,显著提高使用率。叠瀑会所,配套邻里互通,流水会客室,成为第一批出现在副中心的“好房子”项目。
2月22日,北京城市建设国誉颂,生活体验馆正式开放。该项目采用多种创意设计,创新迭代房间类型,打造超配黑科技住宅。“分摊”设计完成了副中心唯一的100%利用率,平均每户拓展空间20%,引起了市场的高度关注。
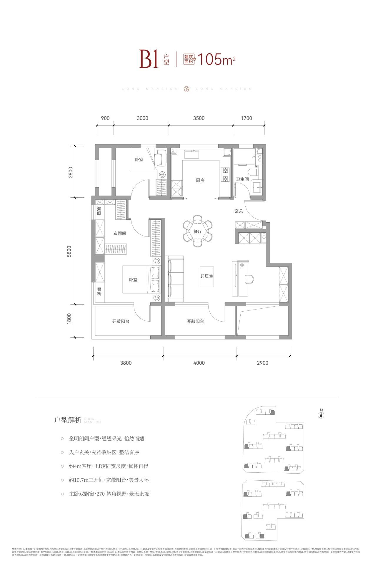
以105㎡以户型为例,通过侧凸窗、南侧空间等设计,超越同类市场约120个㎡房间类型,让家庭尽宽而居。

105㎡户型图
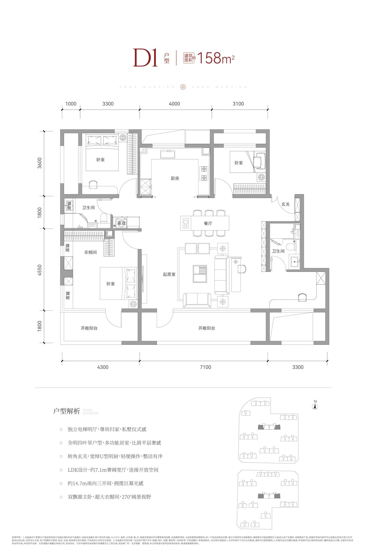
约158㎡超过同类市场184左右的极品四叶草户型㎡房型。LDKG一体化设计,大约7.1米的巨幕客厅,更是刷新了北京新的宽盘纪录。三面宽约14.7米,带来“大”家式系统——客厅、大阳台、大主卧,结合大型落地窗,一览窗外景观。深度阳台大约1.8米,主卧室270米°角落凸窗,双卧套房设计,多功能房间自由改造,满足整个生命周期的需要。

158㎡户型图
同时,与豪宅设计标准相比,采用高档铝板和金属饰面,打造三级立面。规划副中心唯一的一轴八景,超级配叠瀑布俱乐部和流水接待室。整个房子都装满了装备和超级储物空间,实现了包包的入住。
生活体验馆的室内空间采用嵌入式储物柜,使杂物有序回归。毫米空间创新和质量标记,白墙与深灰色路面相结合,营造出强烈的视觉层次。路面采用仿大理石瓷砖,墙面采用环保乳胶漆和木饰面,增加了温和的手感。大多数家具是由木框架和面料或皮革制成的,辅以金属装饰条。亮色枕头和艺术饰品的局部装饰。

效果图
国誉颂还在北京少有的艺术博物馆建造了一个售楼处,提取了艺术宋庄的背景,将超大玻璃幕和独栋建筑与标志性红砖相结合,构建了一个有节奏的审美空间。在内部设计中,采用高视野,选择艺术馆的展示空间,集艺术展览、生活美学、项目谈判于一体,让游客近距离欣赏“艺术剧院”。
尤其是价值5000万元的艺术收藏,令人惊叹。项目与万山河艺术馆合作,收集了万山河老师近20幅著名画作,包括《生命交响》、《熊猫憨情》、《幻想》等油画作品,让游客领略世界著名的中国艺术。

实拍图
此外,该项目还邀请了著名的雕塑艺术大师庞少贤量身定做了多件雕塑艺术品。汇聚艺术IP的核心,打造罕见的宜居高地。
该项目为全妆纯洋房商品,平均价格45,000元㎡从88-158开始,每套建筑面积㎡。
本文仅代表作者观点,版权归原创者所有,如需转载请在文中注明来源及作者名字。
免责声明:本文系转载编辑文章,仅作分享之用。如分享内容、图片侵犯到您的版权或非授权发布,请及时与我们联系进行审核处理或删除,您可以发送材料至邮箱:service@tojoy.com




