大兴机场线明年6月延伸至丽泽 未来五线换乘枢纽2027年投用
地处西二环与西三环之间的丽泽区域,未来将建成一座集5条轨道交通换乘功能于一体的枢纽,同时它也是一座城市航站楼,旅客可从这里直接前往大兴机场。
据《北京日报》报道,京投公司近日透露,丽泽航站楼计划于明年6月底达到初期投用标准,届时将有3条地铁线在此实现换乘,从丽泽到大兴机场仅需24分钟。
丽泽航站楼枢纽坐落于丽泽金融商务区北区,丽泽路北侧、莲花河西侧,总用地面积约7.1万平方米,建筑规模约23.85万平方米。

按照规划,该枢纽未来将汇聚11号线、14号线、16号线、大兴机场线和丽金线这五条地铁线路。目前,14号线和16号线已开通并实现换乘。
当前正在推进建设的是丽泽航站楼综合交通枢纽以及大兴机场线北延段(草桥至丽泽商务区站)。
京投公司相关负责人介绍,枢纽项目目前处于地下主体结构施工收尾阶段,预计今年6月完成钢筋骨架搭建并实现封顶,之后将进入设备安装和内部装修阶段。
该负责人还表示,丽泽航站楼计划2027年6月底具备初期投用条件,届时大兴机场线、14号线、16号线将接入枢纽,丽泽到大兴机场的行程时间仅需24分钟。
待未来11号线和丽金线建成通车后,这里将正式成为5条轨道交通线路交汇的综合枢纽。
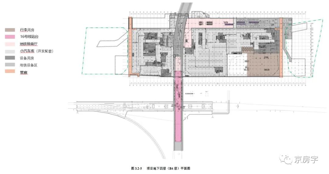
根据公示信息,航站楼枢纽共分为地下五层,丽泽航站楼主要分布在地上及地下一层至三层,将设置旅客值机和行李托运功能。未来旅客在丽泽航站楼就能完成值机和行李托运,“轻装”乘坐机场线前往大兴机场候机。
枢纽首层设有3个出入口。地下一层的主要接驳口位于北侧,服务于出租车、网约车送达的旅客;同时,地下一层还设置了岛式开放旅客值机岛和值机区等设施。

地下二层同样设有值机岛,主要接驳口位于西侧和北侧,分别服务乘坐14号线、16号线、M11号线、丽金线到达的旅客。

地下三层是大兴机场线的旅客到达站台和到达厅。

关于5条地铁线路在枢纽内的布局,大兴机场线车站为地下两层(局部三层)的一岛一侧车站,VIP站厅位于地下一层,站厅层在地下二层,站台层在地下三层;16号线车站共3层,地下一层是14号线与16号线的公共站厅区,地下二层为14号线站台层,地下三层为16号线站台层。

丽金线车站与11号线车站采用错位叠落的设置方式,两站一体,为地下四层岛式车站。其中,地下二层是两线的站厅层,地下三层为丽金线站台,地下四层是11号线及丽金线的换乘厅,地下五层为11号线站台层。

本文来自微信公众号“京房字”,作者:京房字,36氪经授权发布。
本文仅代表作者观点,版权归原创者所有,如需转载请在文中注明来源及作者名字。
免责声明:本文系转载编辑文章,仅作分享之用。如分享内容、图片侵犯到您的版权或非授权发布,请及时与我们联系进行审核处理或删除,您可以发送材料至邮箱:service@tojoy.com




