临沂北城新区一期三地块规划调整公示
点 击 上 方 蓝 字
关 注 我 们
沉寂多年的临沂北城新区一期,迎来了土地规划的重要变动。近期,临沂市自然资源和规划局对该区域内三个“沉睡”地块的规划条件变更进行公示,具体涉及A1-1、A1-2及A2地块。


资料图 来源于百度街景
以下是各地块的详细调整信息:
北城新区一期A1-1地块规划条件变更公示

建设单位:临沂北城置业有限公司
项目内容:北城新区一期A1-1地块规划条件变更
位置:沂蒙北路与成都路交会处东南
用地面积:9.7922公顷
用地性质:商住用地

现状图
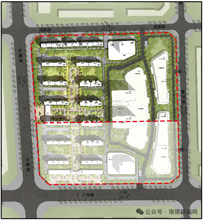
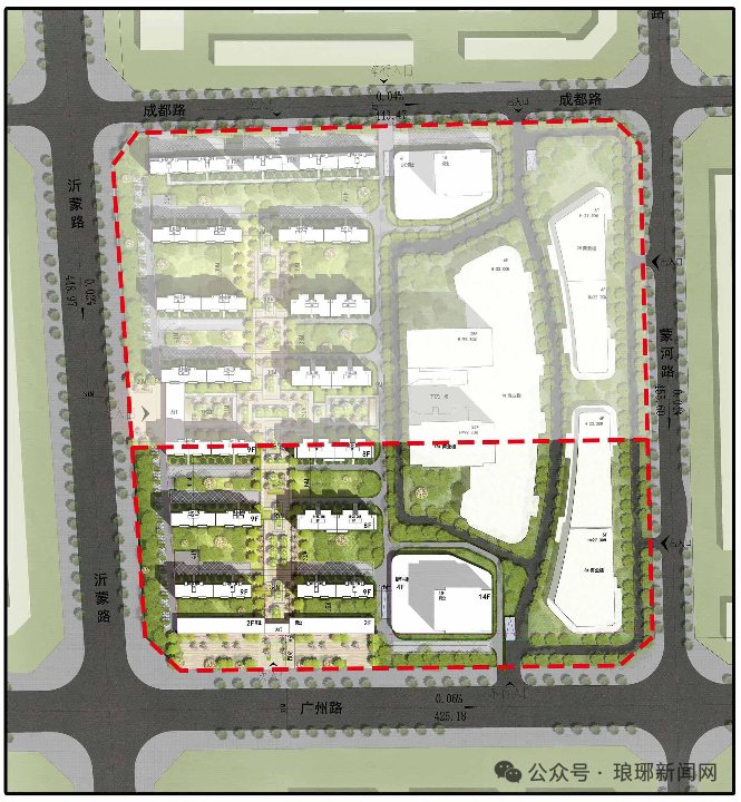
调整详情:为盘活土地资产,该地块拟由商务金融业用地变更为商住用地(商住比70%:30%,商业为商务金融用地,住宅为二类城镇住宅用地)。容积率由不大于4.0调整为1.2-3.0,建筑密度从不大于40%降至不大于30%,绿地率从不小于25%提升至不小于30%。建筑退线、停车配建及公共服务设施配套等将按现行规范执行。

原规划总平面图

拟规划总平面图
公示期:2025年11月26日至2025年12月4日。利害关系人如有异议,可在公示期内提出听证申请并说明理由,逾期视为无异议。
北城新区一期A1-2地块规划条件变更公示

建设单位:临沂北城置业有限公司
项目内容:北城新区一期A1-2地块规划条件变更
位置:沂蒙北路与广州路交会处东北
用地面积:6.0126公顷
用地性质:商住用地

现状图
调整详情:为盘活土地资产,该地块拟由商务金融业用地变更为商住用地(商住比70%:30%,商业为商务金融用地,住宅为二类城镇住宅用地)。容积率由不大于4.0调整为1.2-2.5,建筑密度从不大于40%降至不大于30%,绿地率从不小于25%提升至不小于30%。建筑退线、停车配建及公共服务设施配套等按现行规范执行。

原规划总平面图

拟规划总平面图
公示期:2025年11月26日至2025年12月4日。利害关系人如有异议,可在公示期内提出听证申请并说明理由,逾期视为无异议。
北城新区一期A2地块规划条件变更公示

建设单位:临沂北城置业有限公司
项目内容:北城新区一期A2地块规划条件变更
位置:沂蒙北路与广州路交会处东南
用地面积:3.7966公顷
用地性质:商住用地

现状图
调整详情:为盘活土地资产,该地块拟由商务金融业用地变更为商住用地(商住比10%:90%,商业为零售商业用地,住宅为二类城镇住宅用地)。容积率由不大于4.0调整为1.2-2.0,建筑密度从不大于40%降至不大于28%,绿地率从不小于25%提升至不小于35%,建筑高度从地上不大于100米降至不大于80米。建筑退线、停车配建及公共服务设施配套等按现行规范执行。

拟规划总平面图
公示期:2025年11月26日至2025年12月4日。利害关系人如有异议,可在公示期内提出听证申请并说明理由,逾期视为无异议。
扩散!周知!

视频号上新啦
来源:琅琊新闻网
点赞点“在看”, 让更多人看到⬇⬇⬇
本文仅代表作者观点,版权归原创者所有,如需转载请在文中注明来源及作者名字。
免责声明:本文系转载编辑文章,仅作分享之用。如分享内容、图片侵犯到您的版权或非授权发布,请及时与我们联系进行审核处理或删除,您可以发送材料至邮箱:service@tojoy.com




