新建2个天津高铁站!开通时间决定!
近日,天津市规划和自然资源局公布了滨海东站和滨海南站的相关设计方案平面图。天津新建了两个高铁站——滨海东站和滨海南站,都是在建高铁津潍高铁的中间站。天津市交通运输委员会表示:津潍高铁预计在 2027 2008年全部建成通车。
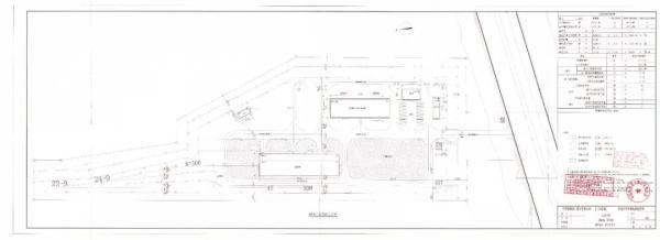
滨海东站
天津市规划和自然资源局发布《新建天津至潍坊高速铁路滨海东工区建筑设计方案总平面图(滨海新区)公示》、《关于滨海东站区办公楼建筑设计方案总平面图(滨海新区)公示》、关于滨海东站停车场建筑设计方案总平面图的公示(滨海新区)。
滨海东工区总建筑面积 4223.46㎡,用地面积 :39445.30㎡。
滨海东站区办公楼总建筑面积 5124.16㎡,地上 3 楼层,建筑高度 14.05m。
滨海东站停车场建设面积 7660.9㎡,绿地面积 1050㎡,泊车位设置 99 位。
滨海东站位于滨海新区大港街道,滨海东站采用“候鸟选福地” 晶盐出水”是一种设计理念,延伸了深邃的屋檐,为乘客遮风挡雨,同时也展现了车站建筑大气的气质。
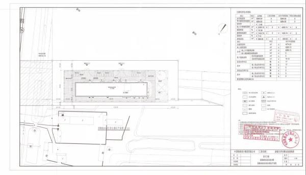
滨海南站
关于滨海南站停车场建筑设计方案总平面图的公示,天津市规划和自然资源局发布了《(滨海新区)》、关于滨海南站区办公楼建筑设计方案总平面图的公示(滨海新区)。
滨海南站区办公楼总建筑面积 4274.23㎡,建筑高度 13.25m。
滨海南站停车场建设面积 8085.1㎡,绿地面积 1050㎡,泊车位设置 99 位。
位于天津市滨海新区南部的滨海南站,大港油田旧城与港西新城之间。
津维高速铁路最新情况
据天津市交通运输委员会介绍,今年,我们将进一步推进京津冀交通一体化,继续建设津潍高铁、京滨城际二期、兴港高速、京津塘高速公路改扩建等特色。
天津市交通运输委铁路建设处处长汪东升表示:“备受关注的津潍高铁,目前已完成天津段海河隧道开挖和桥梁基础施工的一半以上。今年计划实现海河隧道全线通行,下部结构基本完成。预计将在 2027 2008年全部建成通车。”
天津至潍坊高速铁路新建起源于京津市城际铁路延伸线滨海站,最终通过天津市滨海新区、河北省沧州市、山东省滨州市、东营市、潍坊市,到达济青高速铁路潍坊北站。 12 一个,其中正线 10 车站(滨海、滨海东、滨海南、黄稞北、海兴西、无棣、滨州、东营南、寿光东、潍坊北)。
本文仅代表作者观点,版权归原创者所有,如需转载请在文中注明来源及作者名字。
免责声明:本文系转载编辑文章,仅作分享之用。如分享内容、图片侵犯到您的版权或非授权发布,请及时与我们联系进行审核处理或删除,您可以发送材料至邮箱:service@tojoy.com




