这个复古而精致的车库,是我和汽车的秘密堡垒。
来源 / archdaily
Author / 计划设计 & 酷乐汽车
对于像我们这样充满汽油血液的人来说,汽车不仅仅是一个工具。他们是朋友和家人,更多的是感情和回忆。
由于我们热爱汽车,汽车热爱我们,我们喜欢和喜欢的人一起开车到各个地方,汽车是媒介,是媒介,是美好回忆的产生和实现。
有一些汽车,也许是我们曾经的梦想,也许我们正在为它们而奋斗,有时,一辆汽车甚至可以成为你的寄予。
在爱车人士眼里,每一辆经典车都像一个婴儿,需要呵护和维护。如果你创造了一个空间,把这些曾经辉煌的经典老爷车放在一边,让它们再次闪耀,你可以和三五个朋友一起分享这个奇妙的空间。
这种不可抗拒的视觉享受,将是每一位骑手的梦想!
而且这样的个人藏车博物馆,一定要足够吸引人,让人留下来,让每一位来此参观的骑手,都能体验到美丽和震撼。
除了车辆本身的光环外,这样的藏品空间,也必须起到整体提升的作用。
最后,从空间的结构到收藏的质感,每一寸都要完美,建筑设计本身要有很大的视觉冲击力,空间的重构要与收藏相协调,达到统一。
经典汽车收藏馆不仅是普通的汽车收藏馆,也是人类汽车发展史上的文化、历史和丰碑。这些老爷车曾经辉煌孤独,但最终还是被时代记住了。这些经典汽车的出现是为了让人感受到最纯粹的驾驶热情。
在爱车人士眼里,每一辆经典车都像一个婴儿,需要呵护和维护。如果你创造了一个空间,把这些曾经辉煌的经典老爷车放在一边,让它们再次闪耀,你可以和三五个朋友一起分享这个奇妙的空间。
个人藏车博物馆,一定要足够吸引人,要让人留下来,要让每一位来此参观的骑手,都要体验到美丽和震撼。
除了车辆本身的光环外,这样的藏品空间,也必须起到整体提升的作用。
最后,从空间的结构到收藏的质感,每一寸都要完美,建筑设计本身要有很大的视觉冲击力,空间的重构要与收藏相协调,达到统一。
而且作为一个能承载如此精神文化空间的场馆,必然要有独特的设计风格和相辅相成的空间结构特征。
在这次分享中,我们将从爱车设计师的角度进行分享,大概包括以下几点:
而且这个案子就是这样一个空间,对立而统一,看上去有分歧,实则丰富而精确。
走进这个空间,你可以体验到对汽车最纯粹的享受和运动带来的肾上腺素飙升的快感,同时也可以让人静下心来,逐渐感受到文化和历史的陶冶。
传统的木地板夹杂着岁月的痕迹,金属铜茶几和 70 时过境迁的美式皮革沙发相互映衬,结合墙上波浪纹罩壁灯,一切都是那么的合理和精致。
在这里感受老爷车的气氛,在这里可以捕捉到激动人心的时刻,真诚地向经典跑车致敬,加深人们对汽车文化的认识。
该项目的建筑分为两层,一层是车辆展示厅。汽车可以通过一个电梯运输到二楼。顶部的天花板设置了类似风洞实验室的风扇页面形状,也可以起到气流交换的作用。
满满的科幻大片既有视觉感,强满大面积采用金属波浪板,加强垂直空间线性,积累力量感。
在老爷车的展区,传统的旧木地板也是铺着的,与这些年来的好车不谋而合。保时捷、法拉利、奔驰,以前的对手,现在的朋友,在这里相聚,在这里传承永恒。
但是在展厅的另一个区域,一个银色的静静地躺着。 300SL,车身色调统一,同时突出车身液体线条。
与这台银色 300SL 与此相呼应,是同样的银色通体大理石和天花板的镜面天花板,混合着与木质纹理交融的木质隔断。
而且相反的是接待区的全木空间,有温度,复古风格灵活的二楼是招待交流互动区。
然而,在整个场馆里,有一个有价值的经典超级跑车。这个空间非常重视创造汽车的历史氛围。同时,里面的每一辆车都是一个传奇的故事。
美不足以形容这个设计空间,金属光泽和木质空间相互碰撞,这是一个大胆的设计理念。这种材料的对比可以凸显展品的质感和品味。
这个空间的主要设计逻辑在于展现汽车的机器美感,在空间形态和细节上也借鉴了许多汽车设计元素。
展示和储物结构采用类似汽车零部件的设计原理,可以开闭伸缩,模块化程度高,可以轻松应对各种使用场景,充满机械质感。
但是,除了展示部分的区域,我们还做了相当完美的设计理念。一切都是复古元素,就像同时期展品的设计风格一样,在时代上是一样的,但在展示方式上起到了很好的衬托作用。
而且如何最大限度地展现一件精美的艺术品的所有美与特色,相信玩过赛车类。 3A 大作的骑手都会有同样的经历,在车型展示页面上情不自禁地去旋转视图,360 ° 欣赏每一个维度的细节和整体美感,没有死角。
而且在这一空间里,你就像进入了自己的展示氛围,可以围绕着车辆,没有死角地欣赏和回味。
没有人打扰,只有你和汽车,你和历史的交融。
而且现实世界和虚拟世界有很大的不同。
展示的目的当然是多维无死角的感觉,设计者通过可调角度的镜面设备广泛应用于空间的顶部和墙壁,创造出一种与光和方式无缝结合的沉浸式视觉享受。
金属与传统木材的碰撞,展现出不同的设计质感,这是传统与现代的对话,也是历史人文对我们的一次磨练。
这个空间的设计让旧车重新焕发光彩,机械金属的光泽与汽车的质感相呼应。木质质感与皮革和玻璃完美搭配,每一个细节都值得研究。
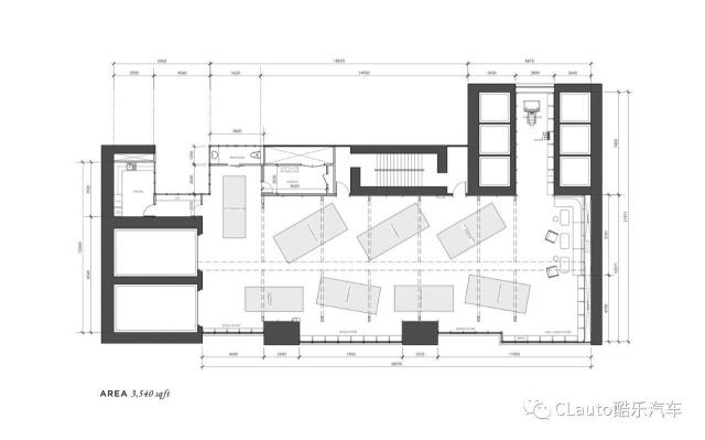
一楼整体空间狭长,面积不是很充裕。入口位于空间中心,有利于提高整体动线的考虑。左转可以快速到达电梯,右转可以作为停车区,对车辆转弯半径要求较小,也方便车辆进出移动。
考虑到空间视觉的最大化,核心区域是开放空间,削弱了空间的紧凑感。附属功能空间安排在空间边缘,弥补了原有场所不规则的缺点,不影响行车线路。右接待区也可以直接观看车辆,获取动态信息。
简洁高效,整备区也成为接待区的视觉焦点,感觉十足。
二楼整体为开放空间,用附属功能区填充角落区域,就像一楼一样,使整体空间更加整洁。中间车辆展厅的展示方式是矩阵排列和纵向排列,可以多维欣赏各种车型。
接待区设置在动线的末端,这也符合车主的心理预期。首先,我们可以看到它是快速的,然后坐下来仔细欣赏和交流。我们用狭长的深度放入矩阵木龙骨,加上空间的视觉冲击和结构美感,就像哥特式建筑的肋形拱顶,大航海时代的帆船舱,充满仪式感和冒险精神。
More
今日日签
本文仅代表作者观点,版权归原创者所有,如需转载请在文中注明来源及作者名字。
免责声明:本文系转载编辑文章,仅作分享之用。如分享内容、图片侵犯到您的版权或非授权发布,请及时与我们联系进行审核处理或删除,您可以发送材料至邮箱:service@tojoy.com





