大开眼界,河西南顶豪亮相|界面新闻
上周三(3月15日),南京市规划和自然资源局刚公示了河西南奥体建设G72地块规划设计方案,至此,河西南螺塘街新“三剑客”规划均已出炉。
紧接着,上周五(3月17日),河西南厦门国贸G70地块的规划方案也公布了。
南京市规划和自然资源局截图
01、河西南厦门国贸G70规划出炉,区域再添3栋顶豪
上周五,河西南厦门国贸G70地块的规划设计方案批前公示出炉。
南京市规划和自然资源局
根据规划,项目将打造3栋住宅,其中,1号楼与2号楼是23层,3号楼是17层。
平面图
户型方面,项目将打造300-628㎡纯粹滨江大平层,主力户型建面约302㎡、346㎡、384㎡,最大户型为建面约628㎡的顶层大平层,每栋楼均为两梯两户设计,层高达到了3.45m;内部打造2个下沉式庭院,或将打造内外双高阶会所。
从效果图看,产品设计十分新颖,同事拥有两个270°转角,这在整个南京新房市场都十分罕见。
效果图
据此前销售透露,项目不含包预计均价7万/㎡,未来上市总价预计2200万起,预计今年三季度亮相。
效果图
根据今年1月厦门国贸南京公司微信公号的一篇推文,厦门国贸河西南G70的项目被首次曝光。
在推文里,厦门国贸明确了G70地块将会采用top级产品线“天琴系”,将会联手奥体建设一起开发。
项目释放
项目位于建邺区双闸街道,南至规划支路文泰路,东隔绿地至红菱街,北隔绿地至扬子江大道,西至街旁绿地;属于河西南滨江片区。
属于河西鱼背区域,附近千万圈层豪宅聚集,G70紧邻万科翡翠滨江、融创滨江ONE,靠近葛洲坝中国府(楼面价45213元/㎡),隔壁就是中宁府,还有上周五出让的伟星河西南G03地块,楼面价直逼南京楼王(中国府)。
区位示意图
伟星河西南G03地块
河西南G03地块,经过12轮竞价触顶摇号,最终被伟星以总价31亿元拿下,成交楼面价43173元/㎡;
项目释放
在当日竞拍的11幅宅地中,河西南G03地块是本次房企争抢的重点之一,土拍钱就共计有21家房企报名竞拍,在土拍当日,表现更是抢眼。
该地块刚开始竞价,仅约一分钟便触顶待摇号了,值得注意的是,最后一轮竞价一秒钟加价2亿3000万。
南京土地市场网截图
该地块成交总价31亿元,成交楼面价43173元/㎡,地价比厦门国贸G70(40487元/㎡)高出2686元/㎡,略高于河西中海玥万物(42561元/㎡),仅次于葛洲坝中国(45213元/㎡)。
中宁府(中能建城发G29项目)
中宁府同样将打造顶级豪宅,项目规划8栋26-29F高层住宅,共计约433套,将打造最高端的“国府系”高端产品,被视为长江尊邸升级版。此前,项目案名曝光,定为中宁府,预计二季度上市。
去年7月13日,经过30轮竞价触顶摇号,该地块最终被中能建城发(葛洲坝)竞得,不设毛坯限价实行差异化定价,拿地总价约45.3亿元,楼面地价39964元/㎡,值得注意的是,该地块是河西南首幅差异化定价地块。
效果图
户型方面,项目打造4种主力户型,分别为建面约198、248、258、298㎡,另有18套400-500㎡大平层,预计均价超7万/㎡,预计总价约1500万起步。
02、河西南新房储备充足,最快5月首开
与此同时,河西南还有几家纯新项目位于螺塘街附近,共同组成了螺塘街新“三剑客”,截止上周三,奥体建设G72规划出炉后,河西南螺塘路新“三剑客”规划就全部出炉了。
项目区位示意图
颐居G71地块
据置业顾问消息,河西南颐居G71项目即将启动,预计今年上半年上市。
置业顾问朋友圈截图
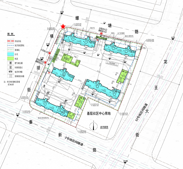
根据规划,颐居G71将打造5栋17F小高层,其中4号楼为一个单元,剩余4栋楼都是2个单元。预计打造建面约115㎡(三房)、130㎡(三房)、173㎡(四房)三种科技系统户型,全一梯一户式入户(具体信息以开发商最终公示为准)。
平面图
从公示的效果图来看,项目外立面采用大面积玻璃,建筑风格现代简约。
效果图
河西南奥体建设G72地块
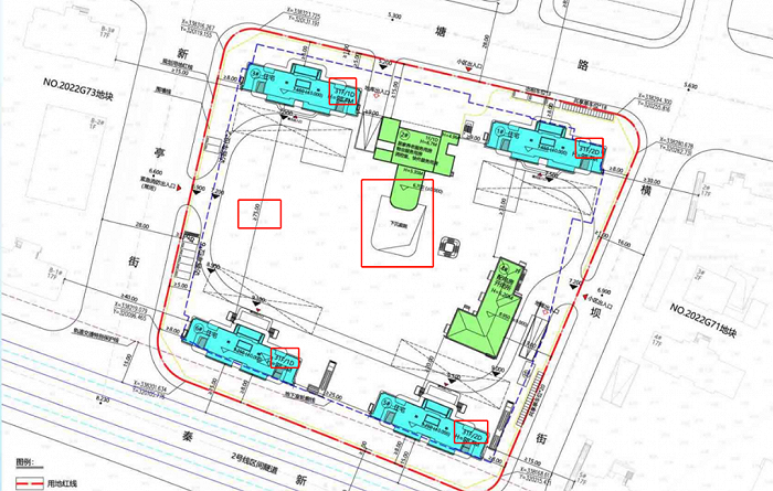
3月15日,南京市规划和自然资源局公示了河西南奥体建设G72地块规划设计方案。根据规划,项目拟建4栋31层住宅,楼间距最大超75米,并且带下沉庭院。
平面图
2022年10月,河西南G72地块被奥体建设以底价16.1亿拿下,成交楼面价32233元/㎡,不设定毛坯销售限价。
从公示的效果图来看,项目外立面采用大面积玻璃,搭配金属线条,建筑风格现代简约。
效果图
据了解,奥体建设G72地块预计约248套,起步户型在200㎡,未来预计总价约1000万起步(最终以开发商公布为准)。
建发缦云(建发G73)
2022年10月19日,经过2轮竞价,河西G73地块最终被厦门建发以总价约21.8亿元拿下,成交楼面价32404元/㎡。
根据规划,拟建9栋楼,全部17层小高层,共分为两个地块建设,其中A分区4栋楼,B分区5栋楼;主力户型建面约125、145、180㎡三种。
本月初,项目正式公开位于华彩天地一楼的城市展厅,并官宣案名为“建发·缦云”,建发·缦云是厦门建发继建发·珺和府、金鼎湾·和禧后在河西南的第三个作品,更加值得期待。
项目释放
据悉,项目售楼处预计最快五一期间公开,预计最快将于5月底首开。
项目释放
此外,河西南还有4家在售项目。
中北金基涵樾府,预计4月上旬加推收官楼栋1、5号楼,共104套房源,主力户型建筑面积约175㎡以及底跃户型。
枫璟雅园,作为目前拥有河西南最小户型的项目, 目前主售3号楼以及7、9号楼剩余少量房源,3号楼户型建面112㎡,全装修销许均价约50516元/㎡,另有3800元/㎡升级装修包。7、9号楼户型建面128、143㎡,全装修销许均价约49072元/㎡,另有3800元/㎡升级装修包。
值得注意的是,项目是目前河西南唯一首付仅需3成的项目,对于想要置业河西南的刚需人群项目非常友好。
南湾上府,项目在售5、7号楼,户型建面165、188㎡,全装修,销许均价约46224元/㎡,另有4560元/㎡升级装修包可选,首付8成。预计2024年12月交付。
嘉璟峰,刚于上周五(3月17日)上午11点进行选房。共50套(人才10套、无房15套),户型面积约140、211㎡,全装修销许均价48108元/㎡,另有4000元/㎡装修升级包,首付8成,共170组摇50套房源,中签率29.4%。项目此后就仅剩余E地块6#最后1栋楼待加推。
上周三(3月15日),南京市规划和自然资源局刚公示了河西南奥体建设G72地块规划设计方案,至此,河西南螺塘街新“三剑客”规划均已出炉。
紧接着,上周五(3月17日),河西南厦门国贸G70地块的规划方案也公布了。
南京市规划和自然资源局截图
01、河西南厦门国贸G70规划出炉,区域再添3栋顶豪
上周五,河西南厦门国贸G70地块的规划设计方案批前公示出炉。
南京市规划和自然资源局
根据规划,项目将打造3栋住宅,其中,1号楼与2号楼是23层,3号楼是17层。
平面图
户型方面,项目将打造300-628㎡纯粹滨江大平层,主力户型建面约302㎡、346㎡、384㎡,最大户型为建面约628㎡的顶层大平层,每栋楼均为两梯两户设计,层高达到了3.45m;内部打造2个下沉式庭院,或将打造内外双高阶会所。
从效果图看,产品设计十分新颖,同事拥有两个270°转角,这在整个南京新房市场都十分罕见。
效果图
据此前销售透露,项目不含包预计均价7万/㎡,未来上市总价预计2200万起,预计今年三季度亮相。
效果图
根据今年1月厦门国贸南京公司微信公号的一篇推文,厦门国贸河西南G70的项目被首次曝光。
在推文里,厦门国贸明确了G70地块将会采用top级产品线“天琴系”,将会联手奥体建设一起开发。
项目释放
项目位于建邺区双闸街道,南至规划支路文泰路,东隔绿地至红菱街,北隔绿地至扬子江大道,西至街旁绿地;属于河西南滨江片区。
属于河西鱼背区域,附近千万圈层豪宅聚集,G70紧邻万科翡翠滨江、融创滨江ONE,靠近葛洲坝中国府(楼面价45213元/㎡),隔壁就是中宁府,还有上周五出让的伟星河西南G03地块,楼面价直逼南京楼王(中国府)。
区位示意图
伟星河西南G03地块
河西南G03地块,经过12轮竞价触顶摇号,最终被伟星以总价31亿元拿下,成交楼面价43173元/㎡;
项目释放
在当日竞拍的11幅宅地中,河西南G03地块是本次房企争抢的重点之一,土拍钱就共计有21家房企报名竞拍,在土拍当日,表现更是抢眼。
该地块刚开始竞价,仅约一分钟便触顶待摇号了,值得注意的是,最后一轮竞价一秒钟加价2亿3000万。
南京土地市场网截图
该地块成交总价31亿元,成交楼面价43173元/㎡,地价比厦门国贸G70(40487元/㎡)高出2686元/㎡,略高于河西中海玥万物(42561元/㎡),仅次于葛洲坝中国(45213元/㎡)。
中宁府(中能建城发G29项目)
中宁府同样将打造顶级豪宅,项目规划8栋26-29F高层住宅,共计约433套,将打造最高端的“国府系”高端产品,被视为长江尊邸升级版。此前,项目案名曝光,定为中宁府,预计二季度上市。
去年7月13日,经过30轮竞价触顶摇号,该地块最终被中能建城发(葛洲坝)竞得,不设毛坯限价实行差异化定价,拿地总价约45.3亿元,楼面地价39964元/㎡,值得注意的是,该地块是河西南首幅差异化定价地块。
效果图
户型方面,项目打造4种主力户型,分别为建面约198、248、258、298㎡,另有18套400-500㎡大平层,预计均价超7万/㎡,预计总价约1500万起步。
02、河西南新房储备充足,最快5月首开
与此同时,河西南还有几家纯新项目位于螺塘街附近,共同组成了螺塘街新“三剑客”,截止上周三,奥体建设G72规划出炉后,河西南螺塘路新“三剑客”规划就全部出炉了。
项目区位示意图
颐居G71地块
据置业顾问消息,河西南颐居G71项目即将启动,预计今年上半年上市。
置业顾问朋友圈截图
根据规划,颐居G71将打造5栋17F小高层,其中4号楼为一个单元,剩余4栋楼都是2个单元。预计打造建面约115㎡(三房)、130㎡(三房)、173㎡(四房)三种科技系统户型,全一梯一户式入户(具体信息以开发商最终公示为准)。
平面图
从公示的效果图来看,项目外立面采用大面积玻璃,建筑风格现代简约。
效果图
河西南奥体建设G72地块
3月15日,南京市规划和自然资源局公示了河西南奥体建设G72地块规划设计方案。根据规划,项目拟建4栋31层住宅,楼间距最大超75米,并且带下沉庭院。
平面图
2022年10月,河西南G72地块被奥体建设以底价16.1亿拿下,成交楼面价32233元/㎡,不设定毛坯销售限价。
从公示的效果图来看,项目外立面采用大面积玻璃,搭配金属线条,建筑风格现代简约。
效果图
据了解,奥体建设G72地块预计约248套,起步户型在200㎡,未来预计总价约1000万起步(最终以开发商公布为准)。
建发缦云(建发G73)
2022年10月19日,经过2轮竞价,河西G73地块最终被厦门建发以总价约21.8亿元拿下,成交楼面价32404元/㎡。
根据规划,拟建9栋楼,全部17层小高层,共分为两个地块建设,其中A分区4栋楼,B分区5栋楼;主力户型建面约125、145、180㎡三种。
本月初,项目正式公开位于华彩天地一楼的城市展厅,并官宣案名为“建发·缦云”,建发·缦云是厦门建发继建发·珺和府、金鼎湾·和禧后在河西南的第三个作品,更加值得期待。
项目释放
据悉,项目售楼处预计最快五一期间公开,预计最快将于5月底首开。
项目释放
此外,河西南还有4家在售项目。
中北金基涵樾府,预计4月上旬加推收官楼栋1、5号楼,共104套房源,主力户型建筑面积约175㎡以及底跃户型。
枫璟雅园,作为目前拥有河西南最小户型的项目, 目前主售3号楼以及7、9号楼剩余少量房源,3号楼户型建面112㎡,全装修销许均价约50516元/㎡,另有3800元/㎡升级装修包。7、9号楼户型建面128、143㎡,全装修销许均价约49072元/㎡,另有3800元/㎡升级装修包。
值得注意的是,项目是目前河西南唯一首付仅需3成的项目,对于想要置业河西南的刚需人群项目非常友好。
南湾上府,项目在售5、7号楼,户型建面165、188㎡,全装修,销许均价约46224元/㎡,另有4560元/㎡升级装修包可选,首付8成。预计2024年12月交付。
嘉璟峰,刚于上周五(3月17日)上午11点进行选房。共50套(人才10套、无房15套),户型面积约140、211㎡,全装修销许均价48108元/㎡,另有4000元/㎡装修升级包,首付8成,共170组摇50套房源,中签率29.4%。项目此后就仅剩余E地块6#最后1栋楼待加推。
本文仅代表作者观点,版权归原创者所有,如需转载请在文中注明来源及作者名字。
免责声明:本文系转载编辑文章,仅作分享之用。如分享内容、图片侵犯到您的版权或非授权发布,请及时与我们联系进行审核处理或删除,您可以发送材料至邮箱:service@tojoy.com



